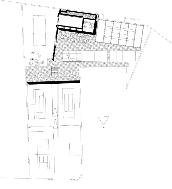
REFORMA DE LAS INSTALACIONES DE CLUB DE TENIS. CONCURSO

 

 

Situación: Castro-Urdiales 

 

 

 

 

Emplazamiento